切换到宽版
  • 32阅读
  • 1回复

[奇观]北京蜂巢当代艺术中心 / 槃达建筑[24P] [复制链接]

上一主题 下一主题
在线jjybzxw

UID: 551814

 

发帖
212973
金币
618997
道行
2006
原创
2441
奖券
3260
斑龄
41
道券
1197
获奖
0
座驾
设备
摄影级
在线时间: 46524(小时)
注册时间: 2008-10-01
最后登录: 2025-12-22
只看楼主 倒序阅读 使用道具 楼主  发表于: 前天 08:53
— 本帖被 huozm32831 执行加亮操作(2025-12-21) —


© 夏至
蜂巢当代艺术中心历经100天的改造,于11月正式揭幕。改造由建筑师孙大勇操刀,对3300平的展览空间整体设计改造。蜂巢当代艺术中心作为拥有798最大的单体建筑空间的画廊近年备受瞩目。17年前,这里从厂房改造为非营利机构伊比利亚当代艺术中心,后来由蜂巢当代艺术中心接手。俗话说从来不存在最好的时机,最好的时机就是现在,在这个经济普遍下行的环境中,2024年的这次改造,蜂巢希望借此提升一下自身以及行业的标准。这次改造可以说是798艺术空间的3.0版本,798从最早1.0版本的工厂,发展为具有工业风特征的2.0版本艺术空间,如今的798已经是具有世界影响力的国际当代艺术聚集地,所以3.0版本的艺术空间更加关注艺术品本身,为艺术品提供最佳的展陈环境。放眼未来和世界,蜂巢当代艺术中心的改造消减掉了工业厂房的痕迹,而是营造了一个纯粹的白盒子空间,更具国际性和当代性。


▲立面概览 © 夏至

▲入口门廊 © 夏至
本次改造包括外立面、前厅、展厅、办公区、VIP室甚至卫生间和库房也做了重新规划,以及与之配套的中央空调、照明系统、水电网络等。此外,在前厅设置了一个文献阅览区,二楼增加了一个具有景观意味的廊桥区,站在这个区域既可以俯瞰主展厅的内部,也可以观看空间的外部。改造后的整体建筑就像一件巨大无比的极简主义风格的雕塑作品。

▲功能分析图 © 槃达建筑

▲前厅 © 夏至

▲前厅展览入口 © 董琳
建筑师的设计理念概括为三个W,第一个是“White”白,白盒子是理想的艺术空间原型。第二个是“Weight”重量。逐层递进的线性空间序列让建筑师联想到了神庙,所以在门厅处设计了一组硕大体量的立柱,就像是卡纳克神庙中的柱廊,给人一种庄严肃穆的神圣感。第三个W是“Will”意志。在建筑中人能找到力量和精神性的对话。主展厅方格状的屋顶结构建立了严谨的空间秩序,光从上面洒下来,人仿佛与现实世界剥离,至身于艺术的圣殿之中。
▲二层廊道 © 夏至
▲二层廊道 © 夏至
“我第一次来到蜂巢时,进入低矮的大门后是一个高挑狭长的前厅空间,拉开一扇5米高的推拉门后是一个硕大的的展厅,尺度恢弘,十分震撼。这让我想起了第一次去罗马万神殿时候的体验,穿过柱廊、门厅,进入直径43米的穹顶大厅,日光洒在穹顶上方形的凹龛里,影子在凹凸的阶梯状藻井造型中徐徐移动,我躺在椅子上仰望中央那个直径8.9米的圆洞,内心无比的平静而感动。我希望把这份平静和感动传递给更多的人,改造后的蜂巢当代艺术中心就是我心中的万神殿。”
——孙大勇说。

▲主展厅概览 © 夏至
▲主展厅一角 © 夏至
▲展览现场 ©董琳



▲展览空间概览 ©董琳
这次改造不仅是室内空间的重新塑造,建筑的外立面也一并重新设计。在原建筑红砖的肌理前,中央部分的门厅以简洁的立方体形态突出于建筑。白色的装饰混凝土赋予了体块手工的肌理和原始的建筑形成呼应。同时白色又跳脱于环境十分醒目。内嵌的柱廊仿佛看到了经典的现代主义大师阿道夫·路斯的影子,路斯主张“装饰即是罪恶”的理念也影响了后辈建筑师,孙大勇提出“少既是爱”的理念在现代主义强调功能性的基础上,又增加了东方的温度和可持续性的考虑。

▲入口立面分析图 © 槃达建筑

▲门厅以简洁的立方体形态突出于建筑 © 董琳
入口的四根柱子是建筑师有意增加的。建筑师说这些柱子灵感源于卡纳克神庙的柱廊,突出尺度的对比,让人在进入的路径中感受到空间节奏的变化,营造出庄重的空间气氛和崇高的仪式感。柱子中央是接待问询前台,仪式感满满。服务台上方是连廊,横穿柱廊,二层人在柱廊间横向穿行游走,宛如橱窗中的风景。前厅与右侧的副厅和二层的廊桥未来作为开放展览对外免费开放,首层还设置了资料浏览区,供人休息阅读。充分体现出艺术机构的社会性。

▲前厅分析图 © 槃达建筑

▲入口的四根柱子 © 夏至
主厅的空间被屋顶的网格等分成18份,每个网格中央是发光膜模拟天光,梁下预留射灯轨道和空调风口。发光天花可以整体亮起,也可以单独亮起。为整个展厅提供了均匀的照明,方格的梁构建了空间新的秩序,为空间提供了参照的坐标。后面的办公区也做了空间梳理,增加了后勤动线和出入口,扩大了库房。二层办公空间采用开放式的空间布局,增加蜂巢团队的高效交流及和谐的工作氛围。三层释放吊顶空间和天光,重新在外墙上开窗,延续空间的秩序。三层作为大会议室和管理层办公室。后院的VIP区域也进行整体升级设计,强调雕塑感和庭院与建筑的互动关系。

▲顶部概念分析图 © 槃达建筑

▲网格中央发光膜模拟天光 © 夏至
▲阅览区 © 夏至
▲楼梯 © 夏至

▲楼梯和交通空间 © 夏至
蜂巢整体空间以白色调为主,干净纯粹。这一点不得不提起建筑师孙大勇的经历。2018年受原研哉邀请参加理想家中国大展——China House Vision时,孙大勇近距离和原研哉先生工作讨论方案,孙大勇深深受原研哉先生影响,原研哉的著作《白》也让他爱不释手。在白色的世界里,虚无感和抽象的美让他着迷。在蜂巢当代艺术中心中,一切都笼罩在白色之下。正如孙大勇坚信的精神性是建筑的终极追求,建筑是对光的礼赞。

▲后院入口 © 夏至
项目图纸

▲平面图 © 槃达建筑

▲立面图 © 槃达建筑

▲立面细部 © 槃达建筑


▲剖面图 © 槃达建筑

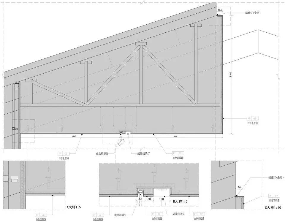
▲节点图 © 槃达建筑
作品名称:蜂巢当代艺术中心改造
地点:北京798艺术区
项目类型:建筑改造
材质:装饰混凝土、钢板、自流平、白色乳胶漆、发光膜
面积:3300平
功能:艺术空间、画廊
创作时间:2024年5月-11月
项目主创:孙大勇
1条评分金币+18
huozm32831 金币 +18 - 昨天 21:03
山庄提示: 道行不够,道券不够?---☆点此充值☆
 
在线jjybzxw

UID: 551814


发帖
212973
金币
618997
道行
2006
原创
2441
奖券
3260
斑龄
41
道券
1197
获奖
0
座驾
设备
摄影级
在线时间: 46524(小时)
注册时间: 2008-10-01
最后登录: 2025-12-22
只看该作者 沙发  发表于: 前天 08:54
蜂巢当代艺术中心在历经100天的全面改造后,于11月重新盛大开幕,标志着中国当代艺术空间发展的一次重要升级。此次改造由知名建筑师孙大勇操刀设计,针对其3300平方米的展览空间进行了系统性重构,不仅提升了空间的功能性与美学体验,更深化了艺术与建筑、公众之间的互动关系。以下是本次改造后的五大核心亮点与变化,从空间结构、策展逻辑、观众体验到文化定位等多个维度展现其革新意义:
一、空间重构:从“白盒子”到“流动的艺术发生器”

传统画廊常以“白盒子”(White Cube)模式呈现,强调中立、去语境化的展示环境。而孙大勇此次的设计突破了这一范式,通过对动线、层高、光影的精密计算,将蜂巢打造为一个动态流动的空间系统。
开放式展厅布局:拆除部分隔断墙,增强空间通透性,实现多展厅之间的视觉串联,使观众在移动中自然形成对艺术脉络的整体感知。
可变展墙系统:引入模块化墙体结构,支持快速重组,适应不同媒介作品(如装置、影像、行为艺术)的多样化需求,极大提升策展灵活性。
垂直空间激活:利用原有建筑的挑高优势,增设空中连廊与观景平台,在二层设置俯视主展厅的视角,赋予观展以“剧场性”体验。

这种空间哲学不再将画廊视为静态容器,而是作为持续生成的艺术事件场域,呼应了当代艺术跨学科、沉浸式的发展趋势。
二、光环境革命:自然光与人工光的诗意对话

光线是艺术展示的灵魂。孙大勇团队特别重视光的设计,实现了技术与美学的高度融合。
智能天窗系统:屋顶新增可调节遮光天窗,引入柔和的自然漫射光,减少直射阳光对作品的损害,同时营造随时间变化的光影氛围。
分层照明体系:结合轨道灯、嵌入式点光源与间接洗墙灯,根据不同展区的作品类型(绘画、雕塑、新媒体)定制光照方案,突出材质与细节。
夜间模式设计:夜晚开放时,建筑外立面通过低亮度LED勾勒轮廓,内部灯光由内而外地“呼吸”,使整个建筑成为798园区中的艺术灯塔。

这种对光的精细控制,不仅保护艺术品,更创造出一种仪式感的观展情绪,让观众在明暗交替中进入沉思状态。
三、公共性强化:艺术与公众的深度连接

改造后的蜂巢不再只是艺术家与藏家的私密殿堂,而是主动向公众敞开的文化客厅。
入口广场重塑:前庭拓宽为开放式文化广场,可用于快闪展览、公共讲座与社区活动,打破艺术机构的封闭边界。
教育功能区升级:新增“蜂巢实验室”(Hive Lab),配备数字交互设备与儿童美育角,定期举办工作坊、青年艺术家驻留计划,推动艺术教育下沉。
无障碍设计全覆盖:坡道、盲文导览、轮椅专用通道等细节体现包容性理念,真正践行“艺术属于所有人”的价值观。

此举标志着蜂巢从商业画廊向复合型艺术机构的战略转型,承担起更多公共文化服务职能。
四、建筑语言更新:工业遗产与当代美学的共生

蜂巢所在的798厂区本为上世纪50年代工业厂房,孙大勇在改造中充分尊重原有建筑肌理,实现历史与未来的对话。
保留原始结构元素:裸露的钢梁、红砖墙、混凝土柱体被完整保留,并作为展览背景的一部分,强化场所记忆。
新旧材料碰撞:新增部分采用阳极氧化铝板、磨砂玻璃与微水泥地面,冷峻现代的材质与粗犷工业风形成张力,象征艺术的批判性精神。
外立面轻介入:未做大拆大建,仅通过局部金属包覆与绿化墙点缀,使建筑在园区中既醒目又不突兀,体现“克制的先锋性”。

这一设计策略避免了过度商业化改造带来的同质化危机,树立了工业遗存活化利用的新典范。
五、运营理念升维:构建全球视野下的艺术生态节点

空间改造背后,是蜂巢整体运营逻辑的跃迁。它正努力成为中国当代艺术与国际对话的重要枢纽。
策展机制专业化:组建国际策展人顾问团,未来将推出更具学术深度的主题群展,而非单纯艺术家个展堆砌。
数字化延伸:同步上线虚拟展厅与NFT艺术实验项目,探索Web3时代艺术传播的新路径。
跨界合作平台:计划与时尚、音乐、科技品牌联名,拓展艺术影响力边界,吸引非传统艺术受众。

可以说,蜂巢已不仅是展示空间,更是一个驱动创作、研究与传播的生态系统引擎。
结语:一次空间改造,一场文化宣言

蜂巢当代艺术中心的百日蜕变,远不止于物理空间的翻新,而是一次关于“何为当代艺术机构”的深刻回答。它回应了当下艺术世界的核心命题——如何在商业化压力下坚守学术品格?如何让高深艺术走入大众生活?如何在全球语境中讲述中国故事?

孙大勇的设计提供了一份极具启发性的答卷:用建筑思维重塑艺术体验,以人文关怀链接社会公众,凭前瞻视野锚定文化坐标。在这座焕然一新的蜂巢之中,每一道光、每一寸空间、每一次脚步,都在孕育新的可能性。它的重启,不只是一个画廊的新生,更是中国当代艺术生态迈向成熟的重要信号。
1条评分金币+6
huozm32831 金币 +6 - 昨天 21:03
如何不发帖就快速得到金币道行
 
快速回复
限120 字节
认真回复加分,灌水扣分~
 
上一个 下一个